Wohnungen in Sankt Valentin
Liebe Sankt Valentinerinnen und Sankt Valentiner, geschätzte Besucher,
als Stadtrat und Obmann des Ausschusses für Zivil- & Katastrophenschutz sowie für das Wohnungswesen freut es mich, Sie auf der Seite des Wohnungsreferates begrüßen zu dürfen. Wohnraum und Wohnungssicherheit sind zentrale Anliegen für eine zukunftsorientierte Stadtentwicklung. Unser Ziel ist es, allen Interessierten leistbaren, fairen und qualitativ hochwertigen Wohnraum in Sankt Valentin zu ermöglichen.
Gemeinsam mit dem engagierten Team im Wohnungsreferat stehen wir Ihnen gerne für Anfragen zur Verfügung. Eine Übersicht der derzeit verfügbaren Wohnungen finden Sie im Anhang.
Falls ein passendes Objekt dabei ist, können Sie direkt auf den entsprechenden Link klicken. Bitte geben Sie folgende Informationen an:
- Vor- und Nachname
- Geburtsdatum
- Wohnort
- Telefonnummer
- Den Grund für die Wohnungssuche in Sankt Valentin (z. B. Familie, Freundeskreis, Arbeitsplatz)
Ich freue mich darauf, Sie vielleicht schon bald in Ihrem neuen Zuhause in unserer Stadtgemeinde willkommen zu heißen.
Ihr STR Johannes Lugmayr
Kontakt:
Wohnungsreferat der Stadtgemeinde St. Valentin
Sachbearbeiterin Berfin Firat-Kiaei
4300 St. Valentin, Hauptplatz 7
Telefon: 07435/505 2480, Fax 07435/505 2999
Mail:
Folgende Wohnungen sind derzeit in St.Valentin verfügbar:
|
Wohnung Nummer 191 Stadtgemeinde St. Valentin Wohnung Nummer 191 - Langenharterstraße 23, 2. Stock; 60,95 m²; 2 Zimmer, Küche, Abstellraum, Bad, WC; Miete: EUR 467,45 Kaution: EUR 1.402,34; Mietbeginn: 01.05.2026 Infos unter: 07435/505 - 2480 - kein Wohnzuschuss oder Wohnbeihilfe möglich Homepage: www.sanktvalentin.at Formular Wohnungsansuchen - hier klicken!
|
|
Wohnung Nummer 180 Die Siedlung Wohnung Nummer 180 - Waldstraße 25, 2. Stock; 53,97 m²; 2 Zimmer, Wohnküche, Vorraum, Bad, WC, Loggia; Miete: EUR 439,59 Kaution: EUR 3.230,23; Mietbeginn: 01.04.2026 Infos unter: 07435/505 - 2480 - kein Wohnzuschuss oder Wohnbeihilfe möglich Homepage: www.diesiedlung.at |
|
Wohnung Nummer 184 Die Siedlung Wohnung Nummer 184 - Raimundstraße 20, 2. Stock; 78,94 m²; 3 Zimmer, Küche, Abstellraum, Bad, WC; Miete: EUR 570,14 Kaution: EUR 5.515,92; Mietbeginn: 01.04.2026 Infos unter: 07435/505 - 2480 - kein Wohnzuschuss oder Wohnbeihilfe möglich Homepage: www.diesiedlung.at |
|
Wohnung Nummer 188 Die Siedlung Wohnung Nummer 188 - Nestroystraße 2, Erdgeschoss; 77,55 m²; 3 Zimmer, Küche, Abstellraum, Bad, WC, Loggia; Miete: EUR 550,64 Kaution: EUR 3.303,84; Mietbeginn: 01.07.2026 Infos unter: 07435/505 - 2480 - kein Wohnzuschuss oder Wohnbeihilfe möglich Homepage: www.diesiedlung.at |
|
Wohnung Nummer 193 Die Siedlung Wohnung Nummer 193 - Neubaustraße 27, 2. Stock, mit Lift; 48,56 m²; 1 Zimmer, Küche, Vorraum, Bad, WC, Balkon; Miete: EUR 495,70 Kaution: EUR 1.982,80; Mietbeginn: 01.05.2026 Infos unter: 07435/505 - 2430 - Im Sozialzentrum; Einzug ab 55 Jahren möglich - kein Wohnzuschuss oder Wohnbeihilfe möglich Homepage: www.diesiedlung.at |
|
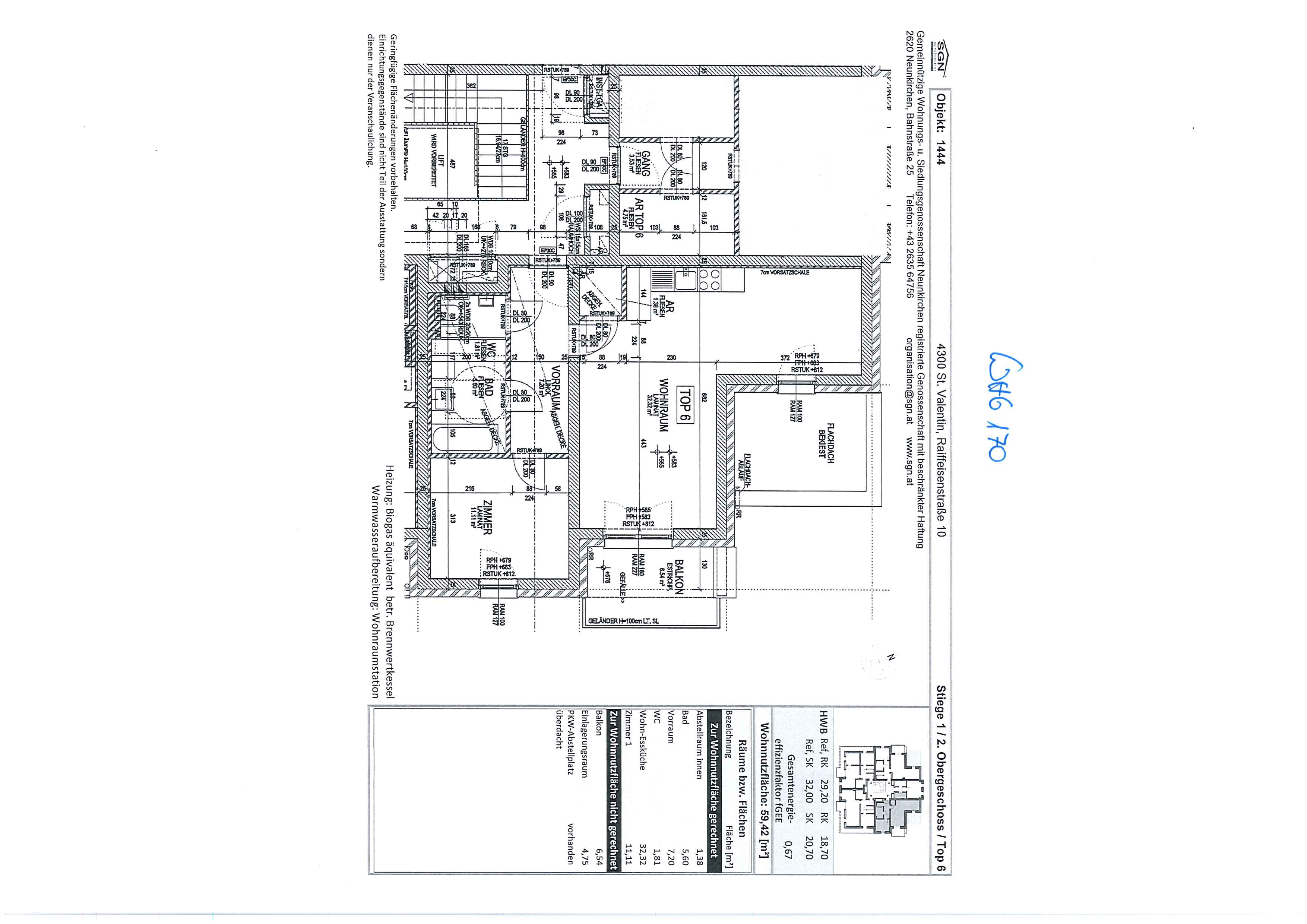
Wohnung Nummer 170 SG-Neukirchen Wohnung Nummer 170 - Raiffeisenstraße 10, 2. Stock; 59,42 m²; 1 Zimmer, Wohn-Essküche, Vorraum, Abstellraum, Bad, WC, Balkon, PKW-Abstellplatz; Miete: EUR 728,42 Kaution: EUR 3.729,43; Mietbeginn: 01.02.2026 Infos unter: 07435/505 - 2480 - Wohnzuschuss möglich, Maximales Alter bei Mieteintritt 35 Jahre Homepage: www.sgn.at |
|
Wohnungsnummer 58 NEUE HEIMAT - GEWOG Wohnung Nummer 58 - Nibelungenplatz 18, 3. Stock; 84,63 m²; 3 Zimmer, Wohnküche, Speis, Vorraum, Abstellraum, Bad, WC, Loggia; Miete: EUR 883,38 Kaution: EUR 5.394,37; Mietbeginn: 01.03.2024 Infos unter: 07435/505 - 2480 - kein Wohnzuschuss oder Wohnbeihilfe möglich Homepage: www.gewog-wohnen.at |
|
Wohnungsnummer 80 NEUE HEIMAT - GEWOG Wohnung Nummer 80 - Nibelungenplatz 18, 3. Stock; 84,63 m²; 3 Zimmer, Wohnküche, Vorraum, Speis, Abstellraum, Bad, WC, Loggia; Miete: EUR 874,02 Kaution: EUR 4.022,51; Mietbeginn: 01.03.2024 Infos unter: 07435/505 - 2480 - kein Wohnzuschuss oder Wohnbeihilfe möglich Homepage: www.gewog-wohnen.at |
|
Wohnungsnummer 86 NEUE HEIMAT - GEWOG Wohnung Nummer 86 - Siegfriedstraße 6, Dachgeschoss; 40,07 m²; 1 Zimmer, Küche, Vorraum, Abstellraum, Bad, WC; Miete: EUR 335,49 Kaution: EUR 2.000,00; Mietbeginn: sofort Infos unter: 07435/505 - 2480 - kein Wohnzuschuss oder Wohnbeihilfe möglich Homepage: www.gewog-wohnen.at |
|
Wohnungsnummer 138 NEUE HEIMAT - GEWOG Wohnung Nummer 138 - Siegfriedstraße 12, Dachgeschoss, 40,07 m²; 1 Zimmer, Küche, Vorraum, Abstellraum, Bad, WC; Miete: EUR 337,40 Kaution/Eigenmittel: EUR 2.000,00; Mietbeginn: 01.06.2025 Infos unter: 07435/505 - 2480 - kein Wohnzuschuss oder Wohnbeihilfe möglich Homepage: www.gewog-wohnen.at |
|
Wohnungsnummer 139 NEUE HEIMAT - GEWOG Wohnung Nummer 139 - Siegfriedstraße 4, 2. Stock, 51,68 m²; 1 Zimmer, Kochnische, Vorraum, Bad, WC; Miete: EUR 432,82 Kaution/Eigenmittel: EUR 2.600,00; Mietbeginn: 01.06.2025 Infos unter: 07435/505 - 2480 - kein Wohnzuschuss oder Wohnbeihilfe möglich Homepage: www.gewog-wohnen.at |
|
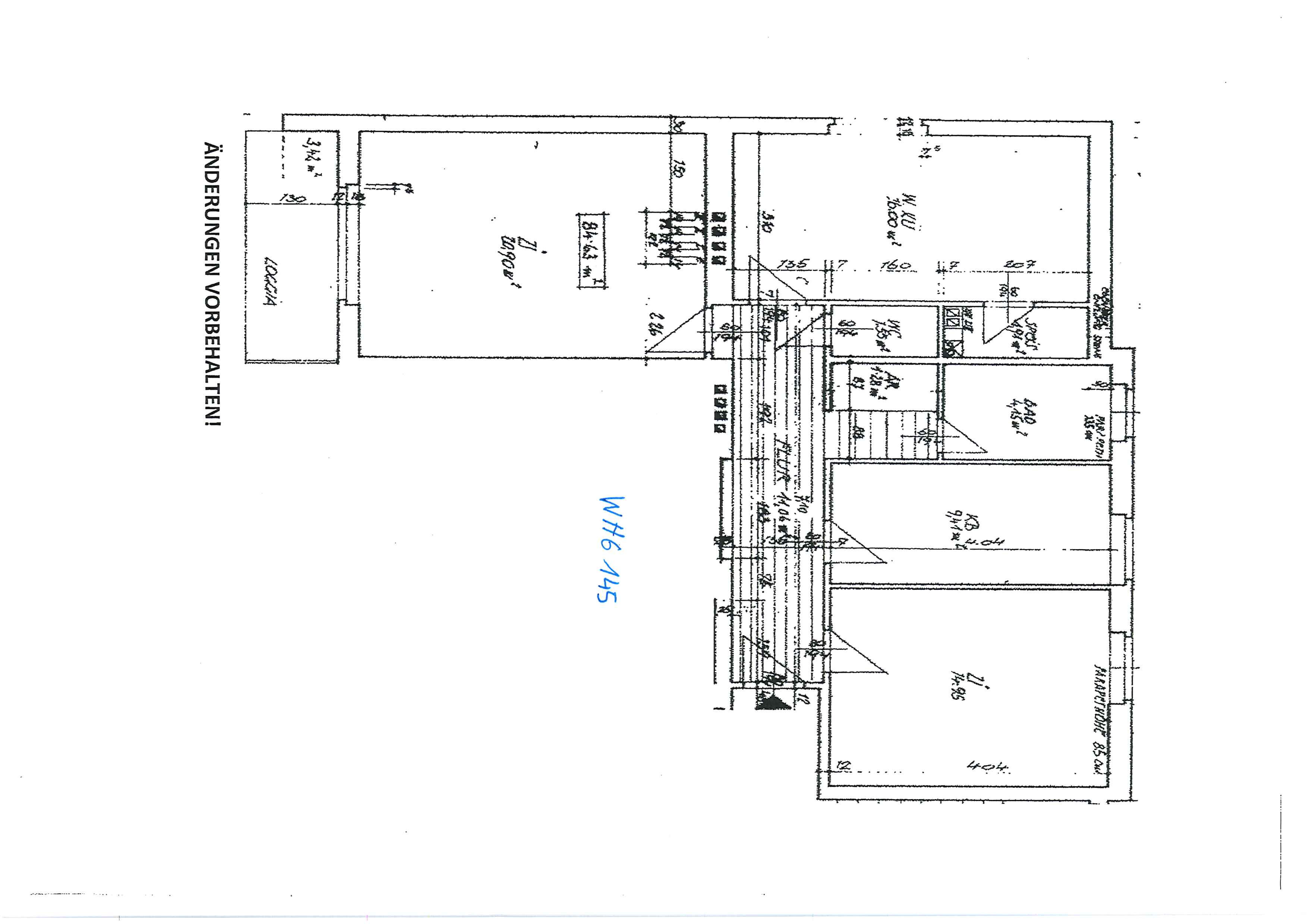
Wohnungsnummer 145 NEUE HEIMAT - GEWOG Wohnung Nummer 145 - Nibelungenplatz 17, 3. Stock, 84,63 m²; 3 Zimmer, Küche, Vorraum, Abstellraum, Speis, Bad, WC, Loggia; Miete: EUR 833,40 Kaution/Eigenmittel: EUR 3.889,88; Mietbeginn: 01.08.2025 Infos unter: 07435/505 - 2480 - kein Wohnzuschuss oder Wohnbeihilfe möglich Homepage: www.gewog-wohnen.at |
|
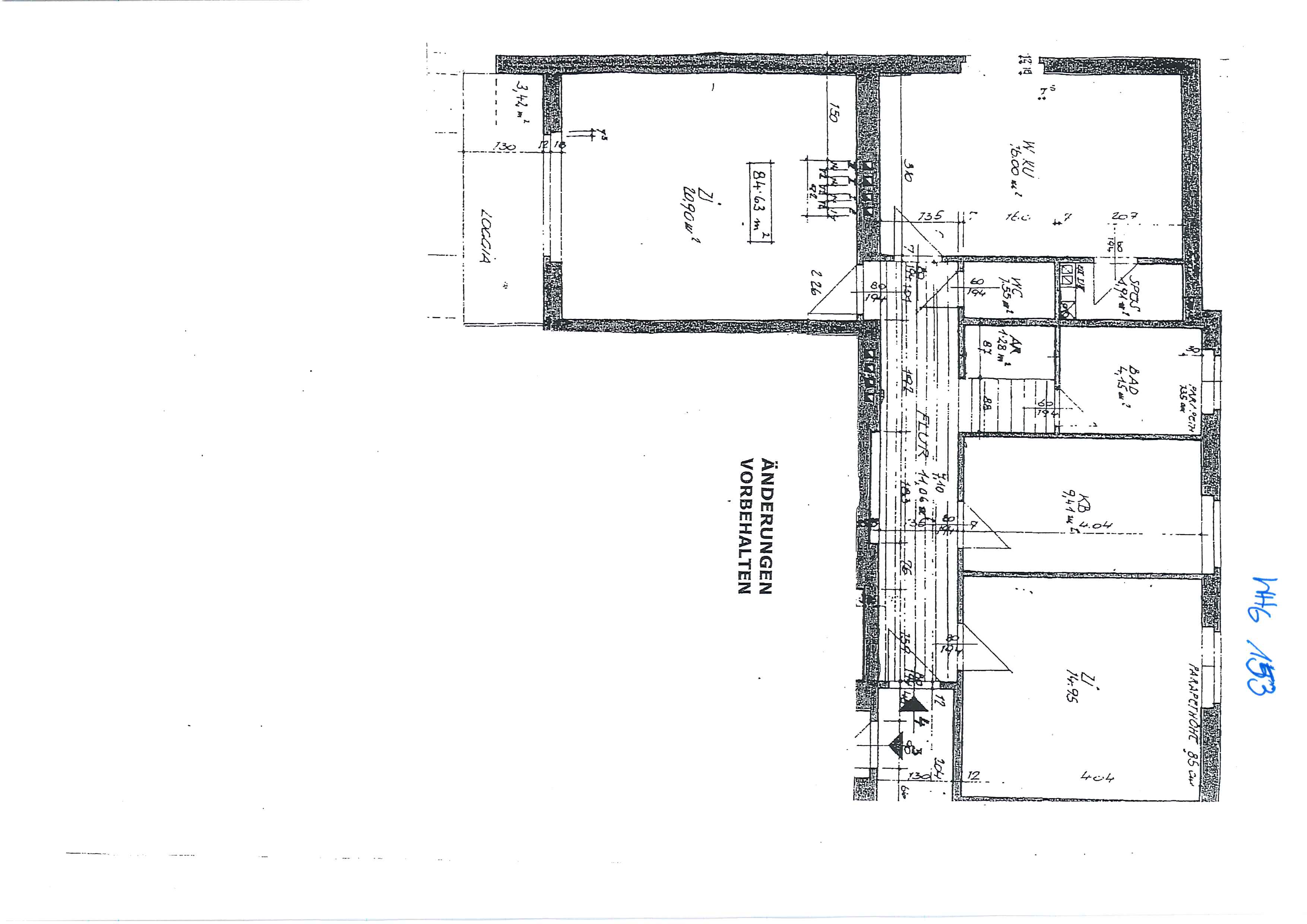
Wohnungsnummer 153 NEUE HEIMAT - GEWOG Wohnung Nummer 153- Nibelungenplatz 17, Erdgeschoss, 84,63 m²; 3 Zimmer, Wohnküche, Flur, Abstellraum, Bad, WC, Loggia; Miete: EUR 844,52 Kaution/Eigenmittel: EUR 3.928,59; Mietbeginn: 01.11.2025 Infos unter: 07435/505 - 2480 - kein Wohnzuschuss oder Wohnbeihilfe möglich Homepage: www.gewog-wohnen.at |
|
Wohnungsnummer 159 NEUE HEIMAT - GEWOG Wohnung Nummer 159 - Nibelungenplatz 18, Erdgeschoss, 84,63m²; 3 Zimmer, Küche, Flur, Abstellraum, Bad, WC, Loggia; Miete: EUR 818,01 Kaution: EUR 7.793,58; Mietbeginn: 01.12.2025 Infos unter: 07435/505 - 2480 - kein Wohnzuschuss oder Wohnbeihilfe möglich Homepage: www.gewog-wohnen.at |
|
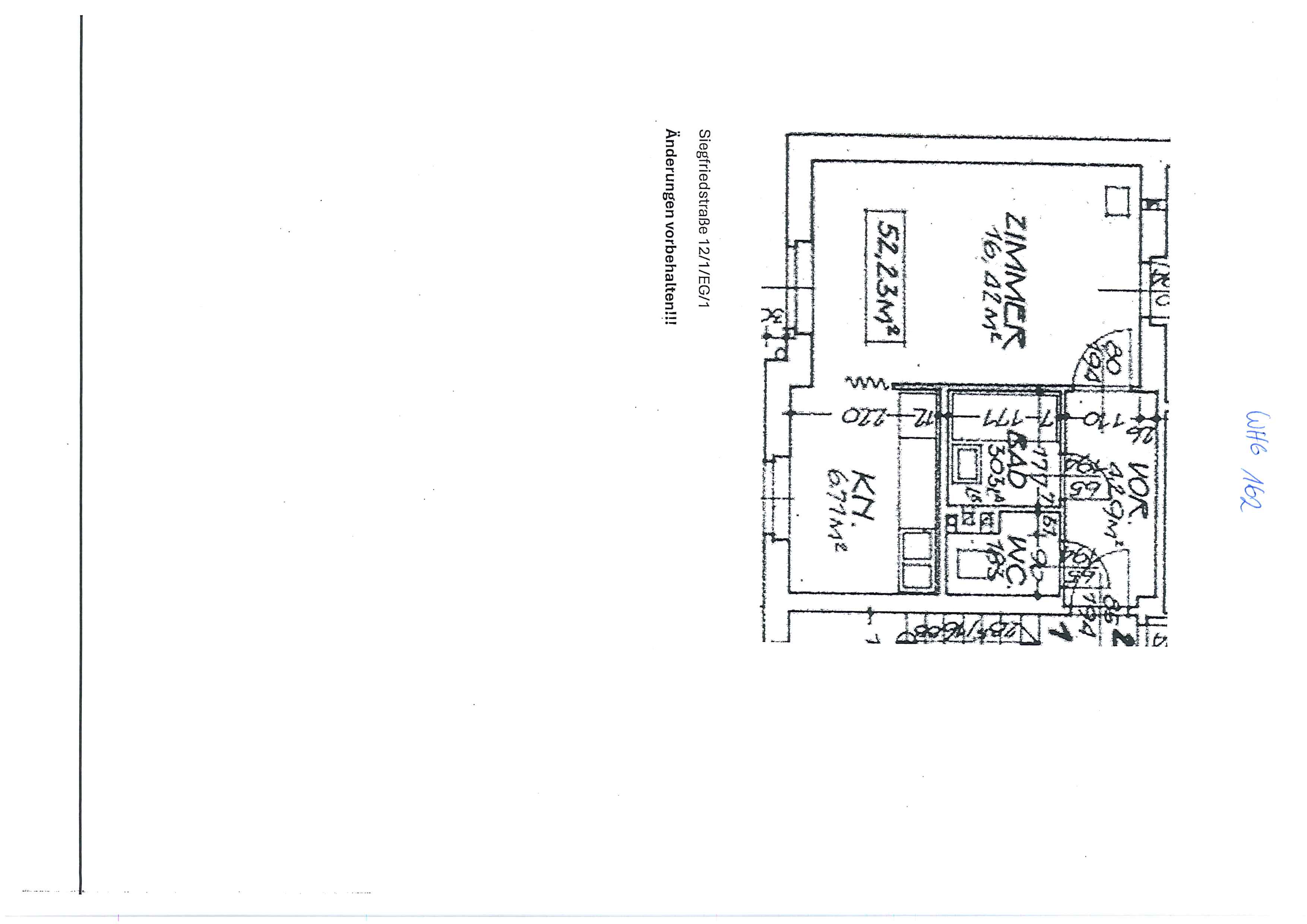
Wohnungsnummer 162 NEUE HEIMAT - GEWOG Wohnung Nummer 162 - Siegfriedstraße 12, Erdgeschoss, 50,90m²; 1 Zimmer, Kochnische, Vorraum, Bad, WC; Miete: EUR 433,48 Kaution: EUR 2.600,00; Mietbeginn: 01.01.2026 Infos unter: 07435/505 - 2480 - kein Wohnzuschuss oder Wohnbeihilfe möglich Homepage: www.gewog-wohnen.at |
|
Wohnungsnummer 167 NEUE HEIMAT - GEWOG Wohnung Nummer 167 - Wilhelm Rott-Straße 4, Dachgeschoss, 77,00 m²; 3 Zimmer, Küche, Vorraum, Abstellraum, Bad, WC, Loggia und Balkon; Miete inkl. Garage: EUR 742,46 Kaution/Eigenmittel: EUR 4.533,23; Mietbeginn: 01.01.2026 Infos unter: 07435/505 - 2480 - kein Wohnzuschuss oder Wohnbeihilfe möglich Homepage: www.gewog-wohnen.at |
|
Wohnungsnummer 171 NEUE HEIMAT - GEWOG Wohnung Nummer 171 - Siegfriedstraße 4, Dachgeschoss, 40,07m²; 1 Zimmer, Küche, Abstellraum, Bad, WC; Miete: EUR 340,45 Kaution: EUR 2.000,00; Mietbeginn: 01.02.2026 Infos unter: 07435/505 - 2480 - kein Wohnzuschuss oder Wohnbeihilfe möglich Homepage: www.gewog-wohnen.at |
|
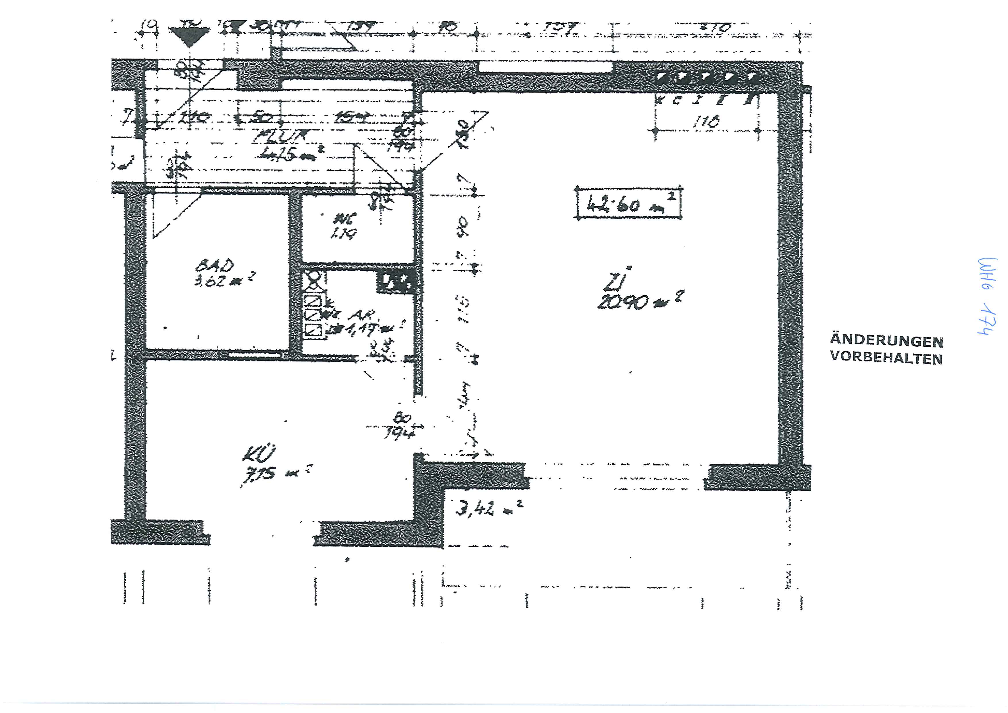
Wohnungsnummer 174 NEUE HEIMAT - GEWOG Wohnung Nummer 174- Nibelungenplatz 18, 2. Stock; 42,33 m²; 1 Zimmer, Küche, Vorraum, Abstellraum, Bad, WC, Loggia; Miete: EUR 410,94 Kaution: EUR 3.902,49; Mietbeginn: 01.12.2025 Infos unter: 07435/505 - 2480 - kein Wohnzuschuss oder Wohnbeihilfe möglich Homepage: www.gewog-wohnen.at |
|
Wohnungsnummer 175 NEUE HEIMAT - GEWOG Wohnung Nummer 175 - Siegfriedstraße 6, Obergeschoss, 45,15 m²; 1 Zimmer, Wohnküche, Vorraum, Abstellraum, Bad, WC, Loggia; Miete: EUR 383,72 Kaution: EUR 2.300,00; Mietbeginn: 01.01.2026 Infos unter: 07435/505 - 2480 - kein Wohnzuschuss oder Wohnbeihilfe möglich Homepage: www.gewog-wohnen.at |
|
Wohnungsnummer 182 NEUE HEIMAT - GEWOG Wohnung Nummer 182 - Siegfriedstraße 2, 1. Stock, 58,98 m²; 2 Zimmer, Küche, Vorraum, Abstellraum, Bad, WC, Loggia; Miete: EUR 503,22 Kaution: EUR 3.000,00; Mietbeginn: 01.05.2026 Infos unter: 07435/505 - 2480 - kein Wohnzuschuss oder Wohnbeihilfe möglich Homepage: www.gewog-wohnen.at |
|
Wohnungsnummer 183 NEUE HEIMAT - GEWOG Wohnung Nummer 183 - Walter-Heraut-Straße 3, Dachgeschoss, 76,41 m²; 3 Zimmer, Küche, Vorraum, Flur, Abstellraum, Bad, WC, Balkon; Miete inkl. Garage: EUR 574,33 Kaution/Eigenmittel: EUR 3.824,32; Mietbeginn: 01.05.2026 Infos unter: 07435/505 - 2480 - kein Wohnzuschuss oder Wohnbeihilfe möglich Homepage: www.gewog-wohnen.at |
|
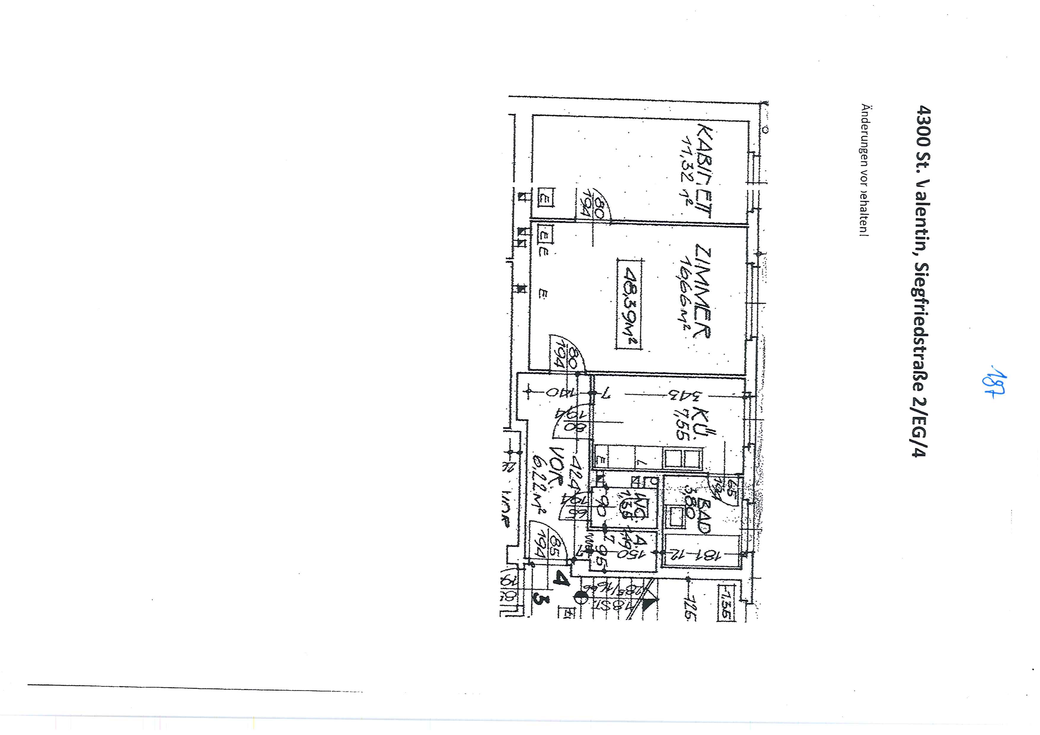
Wohnungsnummer 187 NEUE HEIMAT - GEWOG Wohnung Nummer 187- Siegfriedstraße 2, Erdgeschoss, 48,35 m²; 2 Zimmer, Küche, Vorraum, Bad, WC; Miete: EUR 412,40 Kaution/Eigenmittel: EUR 2.400,00; Mietbeginn: 01.05.2026 Infos unter: 07435/505 - 2480 - kein Wohnzuschuss oder Wohnbeihilfe möglich Homepage: www.gewog-wohnen.at |
|
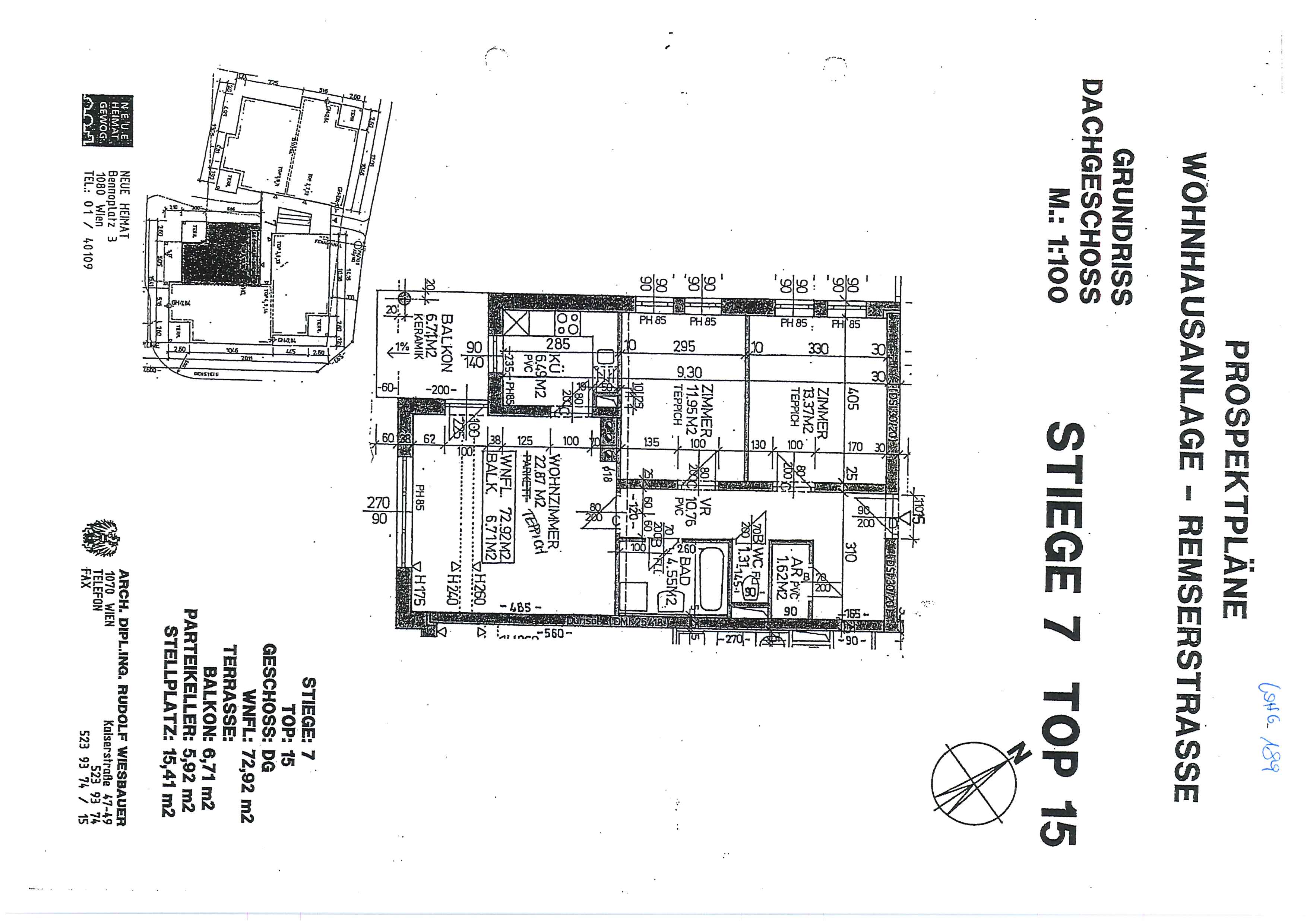
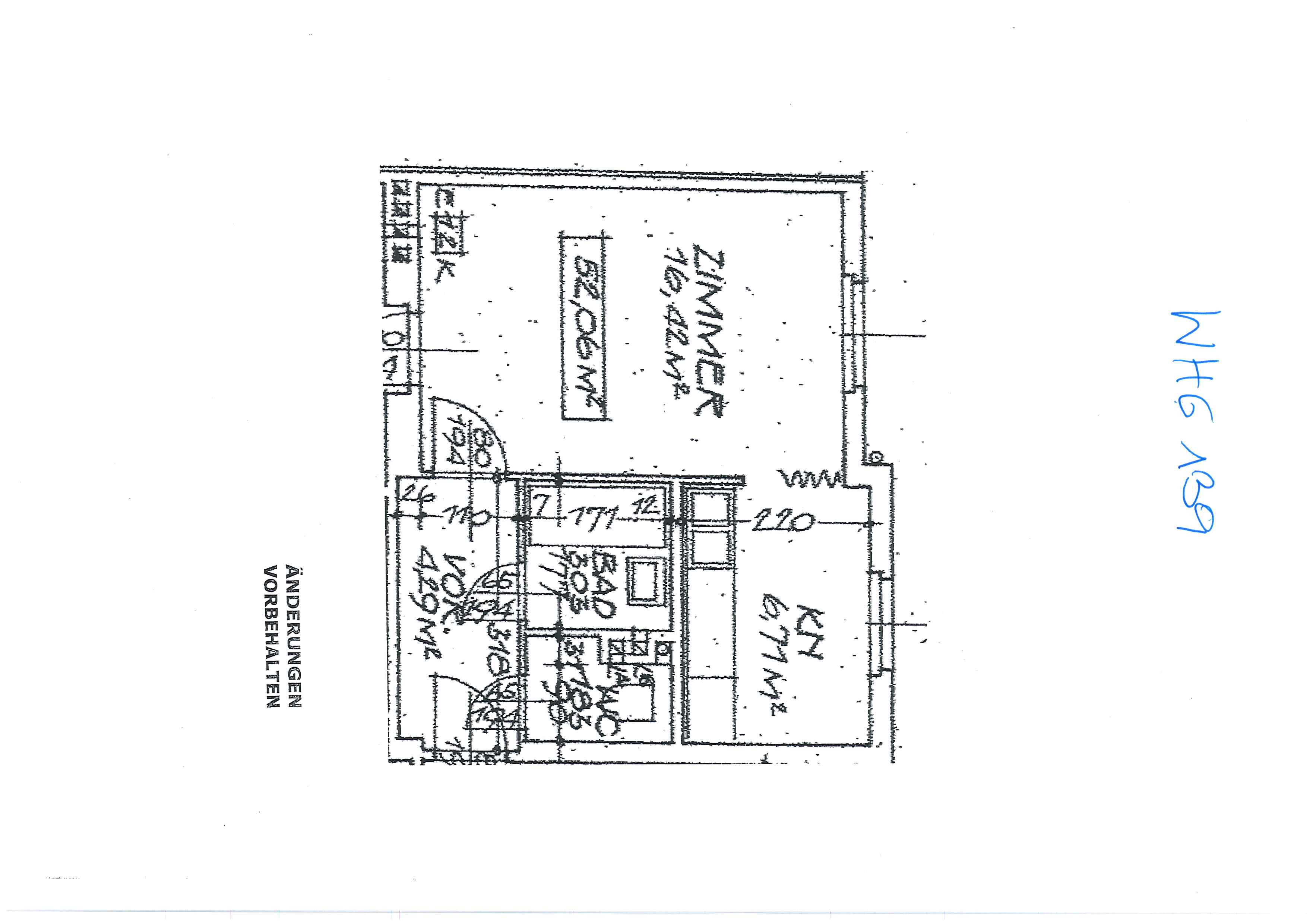
Wohnungsnummer 189 NEUE HEIMAT - GEWOG Wohnung Nummer 189 - Walter-Heraut-Straße 5, Dachgeschoss, 72,92 m²; 3 Zimmer, Küche, Vorraum, Abstellraum, Bad, WC, Balkon; Miete inkl. Garage: EUR 689,08 Kaution/Eigenmittel: EUR 4.523,90; Mietbeginn: 01.07.2026 Infos unter: 07435/505 - 2480 - kein Wohnzuschuss oder Wohnbeihilfe möglich Homepage: www.gewog-wohnen.at |
|
Wohnungsnummer 190 NEUE HEIMAT - GEWOG Wohnung Nummer 190 - Wilhelm Rott-Straße 3, Dachgeschoss, 75,32 m²; 3 Zimmer, Küche, Vorraum, Abstellraum, Bad, WC, Balkon; Miete inkl. Garage: EUR 564,52 Kaution/Eigenmittel: EUR 3.769,76; Mietbeginn: 01.06.2026 Infos unter: 07435/505 - 2480 - kein Wohnzuschuss oder Wohnbeihilfe möglich Homepage: www.gewog-wohnen.at |
|
Wohnungsnummer 192 NEUE HEIMAT - GEWOG Wohnung Nummer 192- Walter-Heraut-Straße 3, Dachgeschoss, 76,42 m²; 3 Zimmer, Küche, Vorraum, Abstellraum, Bad, WC, Terrasse, Balkon; Miete inkl. Garage: EUR 578,28 Kaution/Eigenmittel: EUR 3.820,56; Mietbeginn: 01.07.2026 Infos unter: 07435/505 - 2480 - kein Wohnzuschuss oder Wohnbeihilfe möglich Homepage: www.gewog-wohnen.at |
|
EBS Wohnungsgesellschaft GmbH Linz (Wohnhausanlage Neubaustraße) Angebote unter Homepage: www.ebs-linz.at/wohnungen/sofort-verfuegbare-wohnungen
|
|
BWS Gemeinnützige allgemeine Bau-, Wohn- und Siedlungsgenossenschaft Wien (Wohnhausanlage Ennserstraße) Angebote unter Homepage: www.bwsg.at
|
|
WETgruppe Mödling Vormerkungen zum Neubauprojekt Bürgerstraße/Neubaustraße gibt es bei Herrn Thomas Wahl (Wohnhausanlagen Haydnstraße u. Raiffeisenstraße) Angebote unter Homepage: www.wet.at
|
|
Allgemeine gemeinnützige Wohnungsgenossenschaft St. Pölten (Wohnhausanlage Raiffeisenstraße) Angebote unter Homepage: www.wohnungsgen.at |
|
WAV - Gemeinnützige Bau- und Siedlungsgenossenschaft Waldviertel nähere Infos unter: 02846/7015 oder
|
|
|
